CHARLOTTESVILLE, VA
08 oBSERVATORY
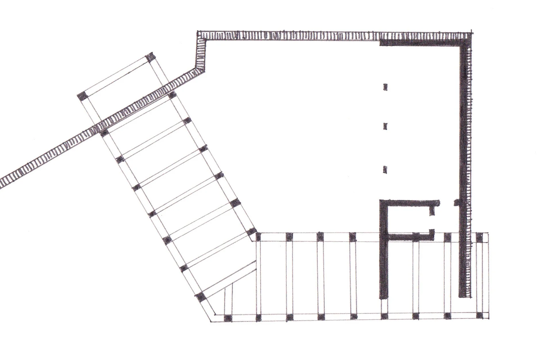
For this project, I designed a pavilion inspired by the educational pavilions on the Lawn at UVA, located on Observatory Hill near the Leander McCormick Observatory. The design had to integrate key aspects of the site, including topography, tree cover, views, and existing flora. The pavilion program consisted of a light/observation room, living quarters, and a garden.
I began by analyzing site diagrams, focusing on topography, vegetation, and surrounding structures. Drawing from this, I embedded the pavilion into the hill, creating an interior courtyard that seamlessly connects both private and public spaces within the building.
The final design features a bent bar floating above a straight bar, which forms the central courtyard garden that extends into the natural landscape. The upper floating level includes a screened façade with an irregular rhythm that mirrors the surrounding trees, creating a dynamic reflection of the environment. The library and observatory occupy the upper level, while the living quarters are tucked below. The pavilion offers a direct view of Jefferson’s Monticello and is thoughtfully positioned in front of the Observatory exit to maximize its connection to the site.






