whirligig park - wilson, nc
03 art center
This project aimed to create an art center in Wilson, NC, adjacent to the Whirligig Park. Known for its whimsical metal sculptures, the park reflects the town’s artistic and agricultural heritage, particularly its history as a major tobacco market. Wilson’s diverse demographics and artistic culture inspired us to design a center that blends performance and visual arts, while respecting the town’s history.
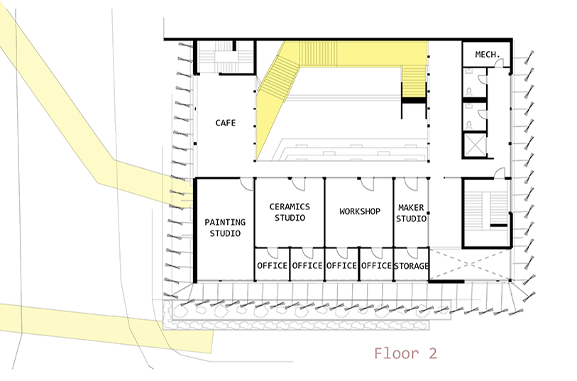
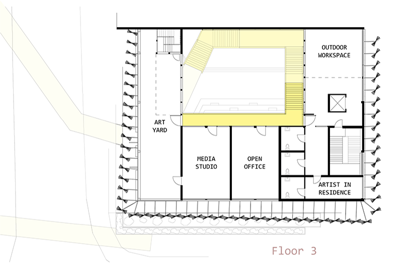
Our design centers on a performance space, with visual arts areas surrounding it. The building follows a grid similar to that of the park, creating an open atrium that visually connects the art center to Whirligig Park. This visual link encourages interaction between the performance space and the park’s outdoor art, further emphasized by a diagrammatic yellow path that ties both areas together.
We drew inspiration for the building’s facade from the region’s tobacco barns, using modular screens reminiscent of venting windows to regulate light and air. These screens, which open in key areas, hang off a dark iron spot brick wall, giving the structure a light, airy feel that complements the whirligigs. The atrium, elevated above the facade, highlights the central performance space.
The performance stage is integrated with a surrounding stair, offering multiple perspectives for viewing. Galleries are tucked beneath the maker spaces on the second and third floors, while a history gallery lines the outside, inviting passersby from the parking lot or Whirligig Park to explore the center.
Our goal was to create an inclusive and inviting art center where people of all ages, races, and cultures can gather to perform, create, and experience art in the heart of Wilson.








